Local

San Luis Ranch is bringing 580 homes to SLO. Here’s when the first ones will be finished

Development of the approved San Luis Ranch project of 580 homes will begin this week, with the first round of homes expected to be completed in late 2020.

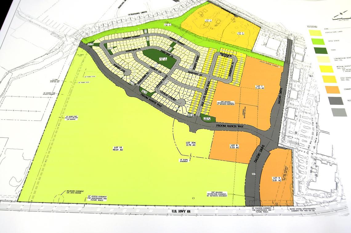
The new housing will occupy the back half of a 131-acre site bordering Madonna Road and Oceanaire Drive, visible from Highway 101. (That’s the half farthest away from the highway.)

The initial work will include a new access road on the south end, to be shared with City Farm SLO, said Walter Heiberg, the project’s general manager.

Then over the next few weeks, Granite Construction trucks will start rumbling in and out, undertaking activities such as “moving earth” and working storm drains, roads, and other basic infrastructure, Heiberg said. Construction of site improvements are expected to continue into spring 2020.

The work crews will mostly access the property from Calle Joaquin, a frontage road along Highway 101 that intersects with Los Osos Valley Road, for the next three to five months, Heiberg said.

Construction along Madonna Road, including a widening and a bike path, is expected to begin in July and continue into summer 2020, along with improvements to Dalidio Drive and Froom Ranch Way, Heiberg said.

Initial sales of homes will start taking place in early to mid-2020, Heiberg said, adding that models are anticipated to offer prospective buyers a chance to view the new homes.

No pricing has been determined yet, Heiberg said.

“Our team is very excited to get started on this exceptional community,” Heiberg said in a statement. “San Luis Ranch will offer diverse housing opportunities, parks and open space as well as an ag heritage center celebrating San Luis Obispo’s rich farming tradition.”

Construction on the San Luis Ranch project, a 580-home project, is underway. The project will be a mix of multifamily and single-family homes. Walter Heiberg, San Luis Ranch project’s general manager.
Construction on the San Luis Ranch project, a 580-home project, is underway. The project will be a mix of multifamily and single-family homes. Walter Heiberg, San Luis Ranch project’s general manager. Laura Dickinson ldickinson@thetribunenews.com

First homes planned for construction

Construction updates notices are available on the website http://www.sanluisranch.org, said Cate Norton, the project’s public relations manager.

The developer already has posted signs stating “Pardon Our Dust” and will be monitoring the construction activities to keep dust levels down, fielding calls for any public concerns as well.

Housing and commercial construction is expected to begin in spring 2020, Norton said in a statement.

The first 296 homes planned for construction are multi-family units at the corner of the property nearest to intersection of Madonna Road and Dalidio Drive, which will be partially shut down during the construction process (access to the nearby post office will still be available).

The multi-family units will include 400- to 600-square-foot studios and one-bedroom apartments; 950- to 1200-square-foot condos, and 1,300- to 1,600-square-foot townhomes.

The project also includes plans for single-family homes — ranging from 1,500 to 2,150 square feet — on 80-foot-deep lots ranging in width from 30 to 40 feet.

Construction on the San Luis Ranch project, a 580-home project, is underway. The project will be a mix of multifamily and single-family homes. Map of the project.
Construction on the San Luis Ranch project, a 580-home project, is underway. The project will be a mix of multifamily and single-family homes. Map of the project. Laura Dickinson ldickinson@thetribunenews.com

Work on those homes is expected to start later in 2020, but after the multi-family construction is underway, Heiberg said.

Plans for the commercial development, possibly mixed-use with 34 very-low to low-income housing units, would still need city approvals.

Of the more than 3,000 people who have signed up to the San Luis Ranch interest list for a new home, nearly 80 percent of them are people who live or work in San Luis Obispo County, Norton said. The project has a local preference program to offer first dibs to locals.

“We will be sending updates to the projects and more information periodically as the construction moves forward, including pre-qualifying details,” Norton said.

Where the work will happen

The Madonna Road additions will include a bike path along the Laguna Lake side, connecting to the Madonna Inn and Bob Jones City-to-Sea Trail, and a turn lane.

New homeowners at San Luis Ranch will face fees for $90 per month to $240 per month, depending on the size of the home, to help pay for infrastructure and services in the city, as part of a Community Facilities District.

About half of the project will remain open for agricultural use (all farming must be organic), while the back portion will be where homes go in.

Initial construction will include removal of dirt on the Highway 101 side of the 131-acre site, moving it to the back portion of the property, Heiberg said, to elevate land that’s now in the flood plain for the new housing.

“We want to make it clear that even though we’re removing dirt from an area where intercultural growing will happen, we’re not building on that part of the land” closest to Highway 101, Heiberg said. “We’ll replace the top soil later for organic farming.”

Construction on the San Luis Ranch project, a 580-home project, is underway. The project will be a mix of multifamily and single-family homes. This view of the property from the end of Calle Joaquin looking north toward the 101 Freeway.
Construction on the San Luis Ranch project, a 580-home project, is underway. The project will be a mix of multifamily and single-family homes. This view of the property from the end of Calle Joaquin looking north toward the 101 Freeway. Laura Dickinson ldickinson@thetribunenews.com

While San Luis Ranch is developing the property’s infrastructure and overall property needs, homebuilding entities such as CoVelop and Williams Homes are among the groups constructing the homes and pricing them for sale. Coastal Community Builders is a partner in the land development of the project as well as a main builder, Norton said.

The project also includes 48 deed-restricted homes, and San Luis Ranch is working with People Self-Help Housing to determine where to build those on the site, Heiberg said. That number doesn’t include 34 additional homes that would either be built in the mixed-use area of the property or funded for homes elsewhere in San Luis Obispo through in-lieu fees.

Prado Road overpass, site improvements

The project will also feature a bike path through the housing complex, a sound wall to protect homes from Highway 101 traffic noise and an extension of Froom Ranch Way to connect to the Prefumo Creek Commons shopping center, home to Target and other stores. Other infrastructure improvements include walking trails and a transit center.

The developer will pay $9.8 million toward the planned $26 million Prado Road overpass to help fund a new Highway 101 freeway access point — viewed as a key piece to the city’s traffic flow. Southbound access could be added in the future.

The city is the lead agency in the planning of the project. But approvals will be made by both the city and Caltrans, which has the final decision authority.

“We have completed preliminary design work and the city/Caltrans has agreed on the several potentially feasible design alternatives,” said Jake Hudson, the city’s transportation manager.

Hudson said the project, fully funded, is on track to begin construction in late 2021, and construction is estimated to take two to three years.

“This timeline is our best estimate based on the information we have however the schedule could change as we progress,” Hudson said.

Construction on the San Luis Ranch project, a 580-home project, is underway. The project will be a mix of multifamily and single-family homes. Detail shot of plan map showing Lot 1 and Lot 2.
Construction on the San Luis Ranch project, a 580-home project, is underway. The project will be a mix of multifamily and single-family homes. Detail shot of plan map showing Lot 1 and Lot 2. Laura Dickinson ldickinson@thetribunenews.com

Some of the preliminary work on the San Luis Ranch project started in January, when crews began clearing trees.

So far, 574 trees have been removed from the San Luis Ranch site that were “dead or dying,” primarily eucalyptus, and 1,400 native trees of various types will be planted on the site, including willows, sycamores and oaks, Norton said.

Clearing and clean-up of a butterfly grove have been completed and great blue heron nests were relocated on site, Norton said.

However, she wrote in an email Friday, the start of full-scale development of the site “is weather permitting.”

This story was originally published May 28, 2019 at 12:11 PM.

Related Stories from San Luis Obispo Tribune
Nick Wilson
The Tribune
Nick Wilson is a Tribune contributor in sports. He is a graduate of UC Santa Barbara and UC Berkeley and is originally from Ojai.
Get unlimited digital access
#ReadLocal

Try 1 month for $1

CLAIM OFFER