Local

Fox Theatre owners have a new plan for Paso Robles’ old movie house

Keith Gilliss, real estate broker, leads a tour of the Fox Theater in Paso Robles in 2015. The owners of Re:Find Distillery, who bought the property last year, now want to turn it into a concert venue with a small brewery and tasting room.
Keith Gilliss, real estate broker, leads a tour of the Fox Theater in Paso Robles in 2015. The owners of Re:Find Distillery, who bought the property last year, now want to turn it into a concert venue with a small brewery and tasting room. dmiddlecamp@thetribunenews.com

The owners of the Fox Theatre in Paso Robles no longer want to turn the vintage movie house into a whiskey-making facility. Now they want to make it a concert venue.

Monica and Alex Villicana of Re:Find Distillery, who bought the vacant Spring Street theater in 2016, are in talks with Good Medicine Presents to revamp the building into a space for music shows.

The Villicanas originally planned to turn the Fox — which was built in 1922 and has remained empty since the 1980s — into a tasting room and production site. But downtown Paso Robles fire codes require that barrels of whiskey must be stored behind a thick wall, which would cost significantly more and change the Villicanas’ design plans.

“By chopping up the space into smaller bits, it wasn’t going to work as we originally had planned,” said Alex Villicana.

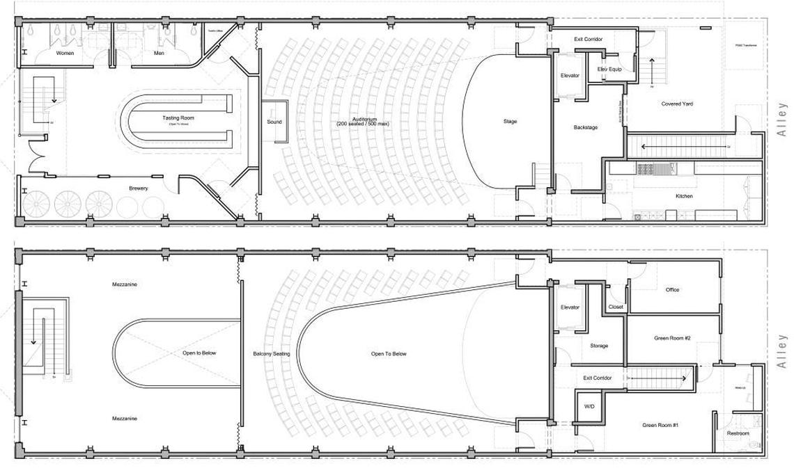
New renderings for the Fox Theatre call for a two-story concert venue with a tasting room and small brewery at the front of the house. The top floor would feature a mezzanine and balcony seating, both with cutouts to the floor below.
New renderings for the Fox Theatre call for a two-story concert venue with a tasting room and small brewery at the front of the house. The top floor would feature a mezzanine and balcony seating, both with cutouts to the floor below. Courtesy renderings

Enter Todd and Korie Newman of Good Medicine Presents, a San Luis Obispo production company looking for a new space to hold concerts. Villicana said he and Todd Newman had been in talks since early this year and are close to hammering out a deal.

The new arrangement would turn the Fox into a concert venue and small brewery, which would be easier to bring into compliance with downtown fire codes, Villicana said. Plans will likely be finalized during the next month or month and a half, he said.

“It’s going to be more music/show space than anything else,” Villicana said.

The Fox Theatre in 1981, a few years before it closed.
The Fox Theatre in 1981, a few years before it closed. Paso Robles Historical Society

Lindsey Holden: 805-781-7939, @lindseyholden27

This story was originally published July 13, 2017 at 6:44 AM with the headline "Fox Theatre owners have a new plan for Paso Robles’ old movie house."

Related Stories from San Luis Obispo Tribune
Get unlimited digital access
#ReadLocal

Try 1 month for $1

CLAIM OFFER